
Neubau Bishnica
Planungen für ein Multifunktions-Zentrum
Internat, Kinderheim, Sozialstation und mehr: Das neue Zentrum soll unsere langjährige Arbeit in den albanischen Mokrabergen auf ein neues Niveau bringen. Werden Sie Teil dieses Projekts – für die Kinder von Bishnica!
Kinderzentrum Bishnica
In unserem Zentrum bekommen Kinder aus armen, abgelegenen Dörfern die Möglichkeit, eine Schule zu besuchen. Montag bis Freitag wohnen sie bei uns und besuchen die Dorfschule; von unseren Mitarbeitern bekommen sie persönliche Lernbetreuung sowie zusätzlich Musik- und Kreativkurse und Fremdsprachenunterricht. Damit geben wir ihnen ein gutes Fundament für ihr Leben. Die Betreuung umfasst: Ernährung, Freizeitprogramm, Kleidung und Schulmaterial, hygienische und medizinische Vorsorge, Zahnarztbesuche, psychologische Begleitung etc.
Neben der Wohnheimunterbringung haben wir in den letzten Jahren immer wieder Kinder mit speziellen körperlichen und sozialen Problemen aufgenommen – weit über die Mokraregion hinaus. Gerade im abgelegenen Bergdorf Bishnica können wir ihnen Schutz bieten und ihnen durch spezielle Förderung helfen, ihr Leben zu meistern.


Notwendigkeit eines Neubaus
Die Räumlichkeiten in einem Wohnblock aus der stalinistischen Zeit sind sehr beengt. Trotz Renovierung entsprechen sie weder den heutigen Ansprüchen noch den staatlichen Anforderungen an Wohnheime für Kinder. In einem weiteren, privaten Gebäude sind die Behandlungsräume unserer Sozialstation untergebracht. Es besteht dringender Bedarf an neuen Räumlichkeiten!
Schon vor Jahren haben wir uns mit der Idee eines Neubaus in Bishnica befasst und mehrere Grundstücke geprüft. Nach jahrelanger Verzögerung aufgrund der rechtlichen Lage in Albanien konnte das Grundstück für den ersten Bauabschnitt im Juni 2022 endlich gekauft werden. Parallel zur Grundstücksfrage hat ein großes deutsch-albanisches Team am sozialpädagogischen und architektonischen Konzept des Neubaus gearbeitet.


Konzeption
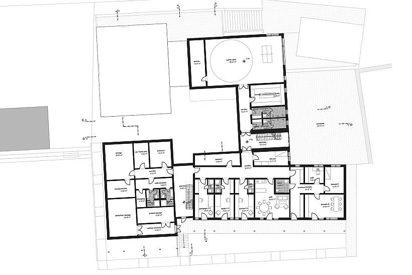
Der Neubau soll nicht nur das Internat, sondern verschiedene Bereiche unserer Arbeit aufnehmen und darüber hinaus ganz neue Möglichkeiten schaffen. Neben dem klassischen Schülerwohnheim wird es ein Heim für Kinder mit besonderen Bedürfnissen geben, unser Pflegedienst wird dort untergebracht und es gibt Raum für dörfliche Veranstaltungen und Besuchergruppen von außerhalb. Daher läuft das Projekt unter dem offiziellen Titel „Multifunktionales Zentrum für Hilfe, Förderung und Begegnung“.
Das neue Zentrum befindet sich in der Dorfmitte von Bishnica. Durch die Gliederung in kleine Baukörper passt er sich in die dörfliche Umgebung ein und bietet öffentlich zugängliche wie auch private Bereiche:

1 Mensa Speiseraum für die Kinder und Gäste, gleichzeitig Veranstaltungsraum für die Dorfgemeinschaft
2 Verwaltung Büro- und Besprechungsräume, Bücherei, im UG Sportraum, Duschen, Lager
3 Internat Wohnräume für 10 Mädchen und 10 Jungen, Lernzimmer, im UG Therapie- und Mitarbeiterwohnräume, im OG Gästezimmer (z.B. Schullandheim, internationale Begegnungen)
4 Heim Dauerhafte Unterbringung von Kindern mit besonderem Hilfebedarf (körperliche, seelische oder geistige Beeinträchtigungen, fehlende oder permanent überforderte Eltern), im OG Gruppenräume und Zimmer für Menschen in Notsituationen (laut albanischem Recht), im UG Technik/Lager
Zusätzliche Möglichkeiten
Alle für Kinder notwendigen Funktionen sind im Erdgeschoss untergebracht und rollstuhlgerecht erreichbar. Die Baukörper gruppieren sich um einen halboffenen Innenhof; durch diese Gliederung ist eine Umstellung auf später eventuell geänderte Nutzung problemlos möglich.
Auf der Südseite schließt sich eine Wiese mit Spiel- und Sportanlagen an. Auf der Fläche zwischen dem neuen Zentrum und dem bestehenden Schulgelände ist Platz für einen kleineren Multifunktionsbau (Werkstatt, Tourismusbüro mit Verkauf einheimischer Produkte), für Zeltlager und Freiluftveranstaltungen.
So entsteht ein multifunktionales Zentrum, das den Anforderungen für eine inklusive Sozialarbeit in der ländlichen Region Rechnung trägt. In direkter Nachbarschaft befinden sich die Dorfschule, das bisherige Internat und das Gemeindehaus.




Zwei Bauabschnitte
Aus planerischen und finanziellen Gründen soll das Zentrum in zwei Bauabschnitten entstehen:
1. Mensa und Verwaltungsgebäude: Übergangsweise können in den Räumen des Verwaltungsgebäudes 16 Kinder in teil- sowie vollstationärer Unterbringung Platz finden
2. Internat und Heim: Damit finden bis zu 20 Kinder in teilstationärer Unterbringung (Internat) und bis zu 8 Kinder in vollstationärer Unterbringung (Heimbereich) Platz
Das Grundstück für den ersten Bauabschnitt hat die Diakonia Albania bereits erworben
(finanziert durch Spenden von zwei Firmen aus Rheinland-Pfalz). Das Grundstück für den zweiten Abschnitt wird von der Kommune langfristig gepachtet.








Stand: 08/2023 Bilder: Schilling Architektur / Walther Kehrer
Gesucht: Sponsoren für den Neubau
Bisherige Sponsoren haben den Erwerb des Grundstücks und den Start der Bauplanungen ermöglicht. Für die weiteren Planungen bis zum Baubeginn und für die Eigenbeteiligung am ersten Bauabschnitt sammeln wir 200.000 €.
Diese große Summe wäre gut zu erreichen, wenn wir sie unterteilen: in 20 „Lose“ zu 10.000 €. Spenden Sie ein Los? Oder motivieren Sie Partner aus Ihrem Geschäftsumfeld, gemeinsam (als „Spenderkonsortium“) ein Los für das Projekt beizutragen?
Im fertigen Gebäude werden die Spender auf einer Ehrentafel genannt. Bei Interesse veröffentlichen wir Ihren Namen auch auf der Internetseite und in unseren Veröffentlichungen.
Gesucht: Baupartner
Bis jetzt stehen bereits fest:
- Ein albanisches Bauunternehmen wird den Rohbau übernehmen
- Ein Ingenieurholzbaubetrieb aus Rheinland-Pfalz wird sich um Planung, Abbund und Logistik der Holzbauelemente kümmern
Weitere Partner werden gesucht, u.a. für Innenausbau, Haustechnik (inkl. Abwasserbehandlung, Solartechnik und Heizung), Dacheindeckung und Freianlagen
Gesucht: Bauhelfer
Möchten Sie sich als Firma, Gemeinde, Verein oder privat beim Bau des neuen Zentrums engagieren? Noch gibt es keine genauen Zeitangaben. Für die Planungen wäre es jedoch sehr hilfreich, wenn Sie bereits vorab Ihr Interesse signalisieren.
Weitere Informationen
Dieses Projekt wird das Leben vieler Kinder verändern, aber auch das Dorf insgesamt und die Region. Wollen Sie sich an dieser wichtigen Aufgabe beteiligen? Wir beantworten Ihre Fragen und stellen das Projekt auch gerne persönlich vor. Bitte wenden Sie sich an unser Vereinsbüro oder an Frieder Weinhold direkt, per Mail an info@chwev.de oder telefonisch unter 0171-4154606.
Dezember 2023: Finanzierung offen
Renovabis lehnt den Antrag zur Finanzierung des Neubauprojekts ab. Nun suchen wir nach einer neuen Finanzierung.
Februar 2023: Planungsfortschritte
Bauplanung, Antragsvorbereitungen, Sponsoren: In den letzten Monaten ging es mit den Planungsarbeiten voran
Juni 2022: Grundstückskauf
Nach jahrelangem Hin und Her mit immer neuen, unerwarteten Hürden konnten wir den Kaufvertrag für das Grundstück in Bishnica unterzeichnen. Nun können wir die Unterlagen für den Bauantrag vorbereiten und aktiv Sponsoren suchen.
Februar 2022: Architektenkonzept
Erste Plakate präsentieren und visualisieren den aktuellen Planungsstand für potenzielle Sponsoren
Juni 2019: Master-Thesis
Walther Kehrer, Student der Fachhochschule Wismar, legt seine Masterarbeit vor: „Ortsmitte und Kinderzentrum Bishnica“. Das Konzept wurde gemeinsam mit CHW und DA erarbeitet.
2016: Lagerbau
Drei Zimmerleute aus Sachsen errichten einen Werkzeugschuppen mit Fahrzeugunterstand – eine wichtige Vorbereitung für den Neubau